Descrizione
A meno di 10 minuti da Monteveglio (Bologna) in splendida posizione appartamenti anche indipendenti con superfici per tutte le esigenze. Prezzo affare a partire da € 44.000,00
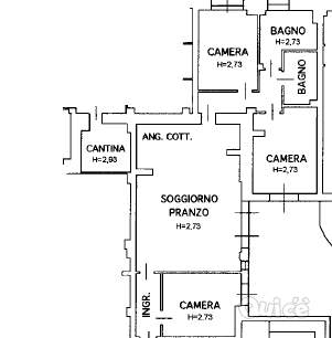
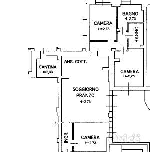
La soluzione di mq 160 si compone di ampio soggiorno con angolo cottura, tre camere da letto, due bagni ed infine una cantina. Al piano interrato è presente il garage di proprietà.
L'edificio, posto sul crinale della collina ha un'ampia vista panoramica sugli antichi borghi del castello di Serravalle. L'abitazione è realizzata a basso consumo energetico, con materiali e tecnologie che garantiscono un risparmio sino al 50% sui consumi di riscaldamento. La palazzina pur mantenendo il rivestimento originario in sasso, è stato realizzato con struttura antisismica e con un'ottima qualità edilizia.
L'esterno dell'abitazione è destinato ad un ampio giardino con area condominiale dotata di area di sosta e giochi per bambini.
Rif. APP.TO SUB 41
Appartamento libero e pronto per essere abitato.
Per informazioni e visite chiama al 333 777 77 15 Cristian --- annuncio pubblicato con GESTIONALEIMMOBILIARE.it
Dettagli
- Inserito:
- 5 mar 10:47
- Inserzionista:
- azienda/associazione
- Tipo annuncio:
- vendo
- Tipo merce:
- nuovo
- Categoria:
- Casa e Terreni
- Comune:
- Zocca (MO)
- Superficie:
- 159
- Locali:
- 3
- Bagni:
- 2
