Descrizione
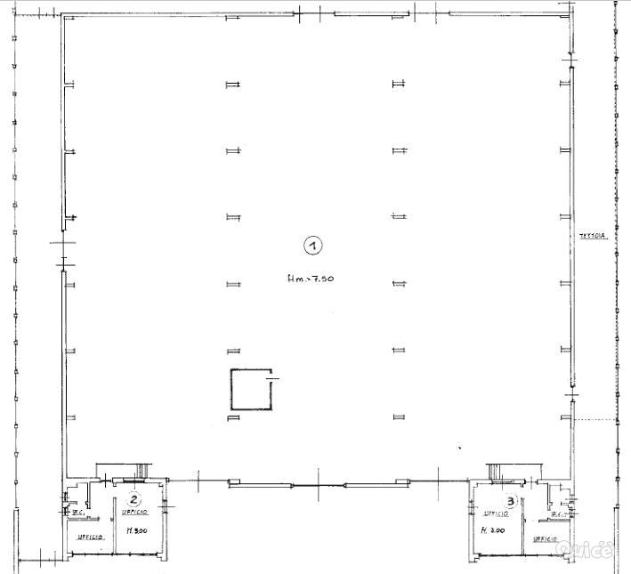
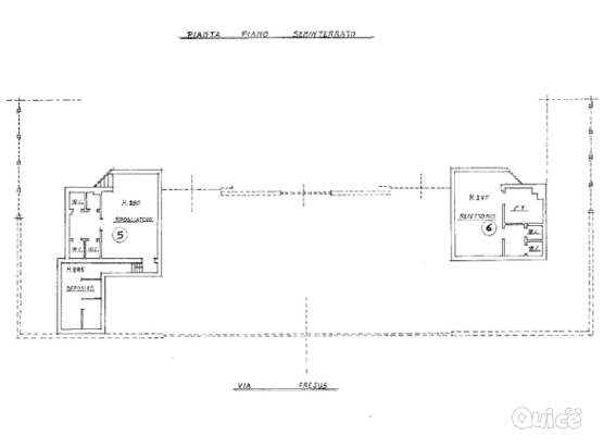
ASTA IMMOBILIARE.- Capannone industriale locato, di 1.263 metri quadrati di forma rettangolare, a tre campate con due avancorpi destinati a uffici e accessori, tettoie a due lati, una laterale l’altra retrostante, cortile antistante e laterale, il tutto in lotto recontato di circa 2.103 mq.
Più precisamente: -a) locale capannone adibito a lavorazione di 1263 mq con altezza utile di 5,20 mt, struttura verticale in muratura con vetrate sovrastanti, struttura della copertura ad arco parabolico e aperture lucernari a shed, con possibile, ma non certa copertura in "eternit". Tre portoni metallici di accesso sulla facciata principale di di 4 e 4,50 mt di larghezza e 5,16 mt di altezza; - b) tettoia chiusa di 167 mq con altezza di mt 3,10, comunicamnte con l'interno del capannone; - c) tettoia aperta di 104 mq con box metallico di 15 mq.; -d) uffici e locali accessori per 179 mq su due avancorpi della faccai ta principale. Riscaldamento presente. Stato di conservazione e mantenzione generale discreto. Piccole difformità edilizie sanabili.
Locato con scadenza finale a dicembre 2022. Canone mensile di 1.500 euro.
Immobile soggetto a VENDITA PUBBLICA TELEMATICA (Asincrona) - Proposta di offerta: 221.500 euro - Base: 295.000 euro (valore commerciale Perizia Tribunale 295.000 euro) - Data vendita: prima decade Giugno 2021.
Incarico di consulenza gratuito fino alla partecipazione. - Possibilità di mutuo dal 70% al 100% del valore di aggiudicazione, a seconda delle caratteristiche del cliente e dell'immobile. Consulente in sede. - Tel. 011-0766766 - cell.327.3556295 - Sig. Bruno - solo orari ufficio. Serve recapito telefonico per essere contattati. --- annuncio pubblicato con GESTIONALEIMMOBILIARE.it
Dettagli
- Inserito:
- 3 mar 11:07
- Inserzionista:
- azienda/associazione
- Tipo annuncio:
- vendo
- Tipo merce:
- usato
- Categoria:
- Casa e Terreni
- Comune:
- Beinasco (TO)
- Superficie:
- 1500
- Tipo:
- Capannone
- Classe Energetica:
- Non soggetto
