Descrizione
Bifamiliare in vendita in Località Sovernigo di Paese, AL GREZZO.
Abbiamo il piacere di immettere sul mercato due opportunità immobiliari da non perdere.
Si tratta di una bifamiliare al grezzo composta da due appartamenti indipendenti disposti su più livelli.
La costruzione risale al 2008 e solo ora i proprietari hanno deciso di immetterla sul mercato in quanto non necessaria a nessuno dei componenti il nucleo familiare.
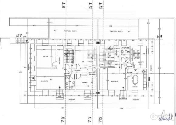
A) La porzione più grande è di complessivi circa 300 metri quadrati, di cui una parte abitabile/residenziale e altra parte dedicata a taverna, magazzino e mansarda praticabile ma non abitabile.
B) Quella più piccola , di ca 250 mq ha le stesse caratteristiche di quella più sopra
Possiamo ipotizzare che le due unità abitative saranno catastalmente formate da 1/2/3 camere, cucina, bagno soggiorno di buona metratura ai quali spazi aggiungere l'ampio e confortevole locale, con altezza da progetto di cm 2.70, parzialmente interrato, da cui far partire volendo, il vano ascensore. All'ultimo piano , l'affascinante locale sottotetto , anch'esso praticabile ma non abitabile. Il grande garage ed il giardino di proprietà.
Entrambi gli immobili sono in vendita , con partenza da euro 130.000,00 (centotrentamila) per il cespite più piccolo.
Riteniamo che la location ( Sovernigo) sia una zona particolarmente appetibile per la tipologia di costruzioni residenziali di piccola cubatura che insistono, molto vicina a tutti i servizi offerti dalla limitrofa Paese, che per la serenità abitativa che il paesaggio "bucolico" di cui si da subito si ha parcezione.
Da non sottovalutare il prezzo di partenza davvero interessante . Così interessante che potrebbe essere adatto a chi del "mestiere" potrebbe finirla con dei lavori in economia non impegnativi ed il cui risultato finale , anche sotto il punto di vista economico, potrebbe risultare davvero molto e molto interessante.
Se desiderate approfondire, anche con una visita in loco, più sotto trovate il numero di riferimento e quello telefonico.
Grazie e a presto a Sovernigo di Paese-
Rif.to n. FSB 328 Telefono 0422.58.00.59
Dettagli
- Inserito:
- 3 lug 04:00
- Inserzionista:
- azienda/associazione
- Tipo annuncio:
- vendo
- Tipo merce:
- usato
- Categoria:
- Casa e Terreni
- Comune:
- Paese (TV)
- Superficie:
- 250
- Locali:
- 8
