Descrizione
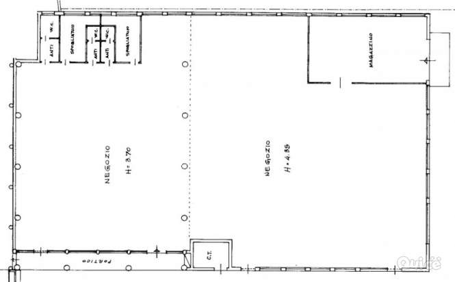
A Venturali di Villorba (TV), proponiamo in vendita spazio commerciale predisposto per l'attività di vendita al pubblico. La soluzione dispone al piano terra di bagni, spogliatoi, zona ricevimento merce e area di vendita, per totali 1000 metri quadrati circa. L'immobile dispone inoltre di 18 posti auto al piano interrato. Tale spazio è riservato e chiuso tramite basculante. Zona centrale. --- annuncio pubblicato con GESTIONALEIMMOBILIARE.it
Dettagli
- Inserito:
- 10 ott 20:21
- Inserzionista:
- azienda/associazione
- Tipo annuncio:
- vendo
- Tipo merce:
- usato
- Categoria:
- Casa e Terreni
- Comune:
- Villorba (TV)
- Superficie:
- 1300
- Tipo:
- Negozio
- Classe Energetica:
- E
