Descrizione
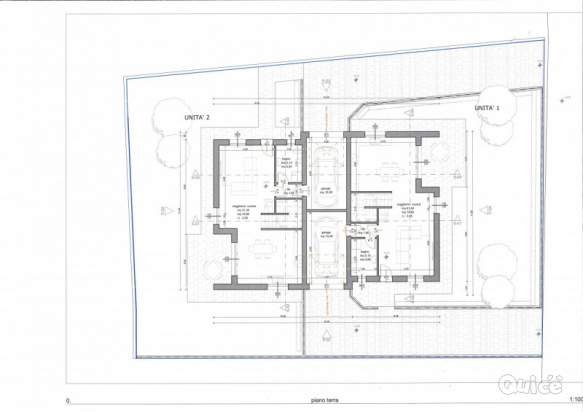
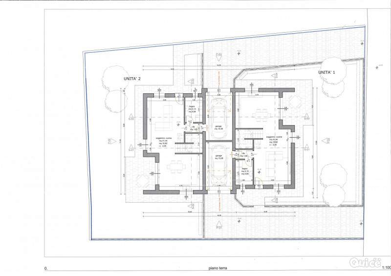
ISOLA DELLA SCALA: IN FASE DI COSTRUZIONE nuova in classe A4, a poca distanza dal centro, in tranquilla e comoda zona residenziale con aree verdi e parcheggi, nuova iniziativa di una costruzione bifamiliare ognuna dotata di ingresso carraio e pedonale autonomo.
Entrambe le abitazioni sono composte da un luminoso soggiorno/cucina di 42mq, bagno, porticato ed autorimessa al piano terra; tre spaziose camere, bagno e loggia al piano primo; l'unità 1 avrà un area esterna di proprietà di circa 140mq, mentre l'unità 2 un'area esterna di circa 200mq.
Entrambe le soluzioni sono personalizzabili negli spazi e nelle finiture.
Il capitolato prevede, tra le altre caratteristiche, un isolamento termico di classe A, isolamento acustico di ultima generazione, pavimenti in gress di grande formato, serramenti in PVC con struttura a 5 camere con zanzariere e avvolgibili in alluminio coibentato, VMC, riscaldamento a pavimento con pompa di calore, impianto fotovoltaico da 3 KW.
Il prezzo qui proposto si riferisce all'unità 1 ultimata, esclusa IVA, tasse, spese notarili ed agenzia.
Consegna entro 12 mesi dal preliminare. --- annuncio pubblicato con GESTIONALEIMMOBILIARE.it
Dettagli
- Inserito:
- 19 feb 20:42
- Inserzionista:
- azienda/associazione
- Tipo annuncio:
- vendo
- Tipo merce:
- nuovo
- Categoria:
- Casa e Terreni
- Comune:
- Castel d'Azzano (VR)
- Superficie:
- 163
- Locali:
- 3
- Bagni:
- 2
- Classe Energetica:
- A4
