Descrizione
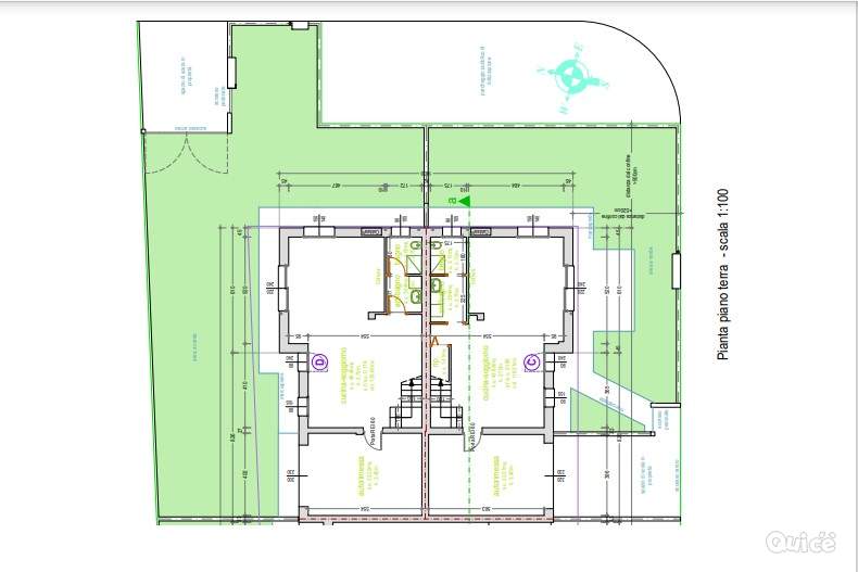
BRENDOLA: porzione di bifamiliare disposta su due livelli fuori terra. Al piano terra troviamo cucina con soggiorno in open space, servizio ed autorimessa; al piano primo due camere matrimoniali, camera singola e bagno. Giardino. Classe A1 - Euro 295.000. Chiama 0444/291819
PUNTI DI FORZA
- Zona ben servita
- Spazi ben distribuiti
- Possibilità di personalizzazione
La bifamiliare che proponiamo è composta da un'ariosa zona giorno prevista in open space collegata al giardino e da un bagno finestrato. Il garage è ovviamente collegato.
Una scala a vista ci accompagna alle tre camere di cui due matrimoniali ed una singola, e da un bagno finestrato accessibile ad un portico.
Finiture: Cassonetti monoblocco a scomparsa per contenimento avvolgibili con falso telaio e guide di scorrimento. Avvolgibili in alluminio con motorizzazione. Serramenti esterni in PVC bianco liscio, rispondenti alle caratteristiche imposte dalla normativa, con vetrocamera basso emissivo. Portoncino d'ingresso per esterni in PVC color bianco liscio, ad una anta, opaco e coibentato, con caratteristiche di sicurezza. Serramenti interni in laminato bianco liscio o tinta legno ad un'anta o a scomparsa. Porte REI di divisione tra autorimessa e abitazione come da normativa VV.FF. Battiscopa interno in legno color bianco liscio. Portoni sezionali per le autorimesse.
Intonaci interni in premiscelato con finitura tirata a panno.
Tinteggiatura interna con tinte tenui semilavabili a scelta dell'acquirente.
Le pavimentazioni interne saranno costituite da gres porcellanato per la zona giorno, i servizi igienici, le scale e le autorimesse, compreso rivestimenti delle pareti dei servizi igienici, e parquet per le camere. --- annuncio pubblicato con GESTIONALEIMMOBILIARE.it
Dettagli
- Inserito:
- 30 mar 16:08
- Inserzionista:
- azienda/associazione
- Tipo annuncio:
- vendo
- Tipo merce:
- nuovo
- Categoria:
- Casa e Terreni
- Comune:
- Brendola (VI)
- Superficie:
- 195
- Locali:
- 3
- Bagni:
- 2
- Classe Energetica:
- A1
