Descrizione
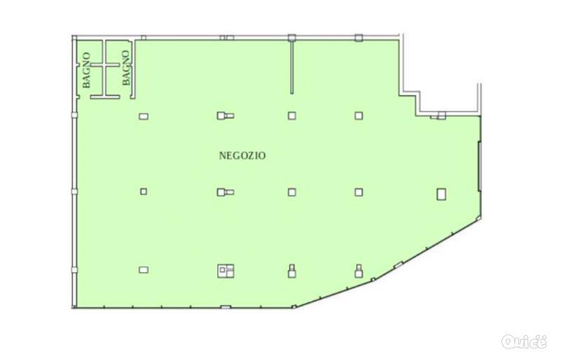
RIF. GL337 IN ZONA CENTRALE DI CARPI CON PASSAGGIO PEDONALE E VEICOLARE PROPONIAMO IN VENDITA UN AMPIO SPAZIO COMMERCIALE DA ADIBIRE A NEGOZIO. SPAZIO OPEN-SPACE DI 500MQ CON DOTATO DI GRANDI VETRATE, CON DUE BAGNI.
POSSIBILITA' DI FRAZIONARLO. PARCHEGGI DI FRONTE
RICHIESTA € 250.000 --- annuncio pubblicato con GESTIONALEIMMOBILIARE.it
Dettagli
- Inserito:
- 2 mar 10:41
- Inserzionista:
- azienda/associazione
- Tipo annuncio:
- vendo
- Tipo merce:
- usato
- Categoria:
- Casa e Terreni
- Comune:
- Carpi (MO)
- Superficie:
- 510
- Tipo:
- Negozio
